MAGNIFIQUE DUPLEX EN DERNIER ÉTAGE
Réf : 46
Bas de station
5 pièces - Appartement
Points forts
  • Bien neuf
  • Dernier étage
  • Belle prestations
Prix :
2 200 000€*
Honoraires charge vendeur

Nos conseillers sont là !
Etudions le bien immobilier qui vous ressemble :
+33 (0) 4 79 06 73 52

Réf : 46

MAGNIFIQUE DUPLEX EN DERNIER ÉTAGE

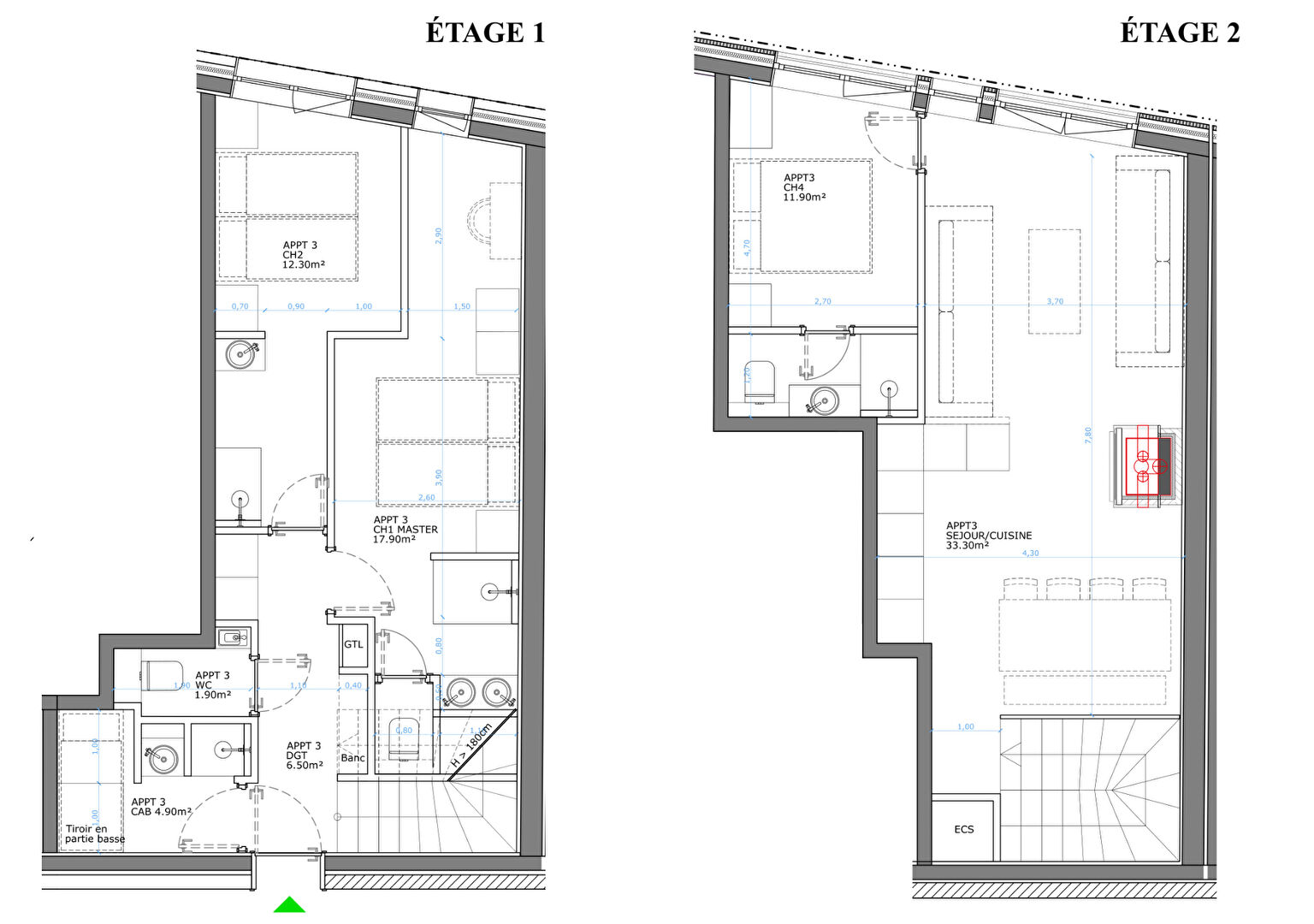
Au sein du projet de surélévation de la résidence Illaz à Val d'Isère, cet appartement de 88,70 m² séduit par son agencement en duplex et son atmosphère raffinée, pensée pour accueillir confortablement familles et amoureux de la montagne. Dès le premier niveau, on trouve trois chambres en suite dont une chambre d'enfants qui ravira les plus jeunes. A l'étage supérieur, une suite supplémentaire et le séjour, véritable pièce maîtresse, qui s'articule autour d'une cheminée créant une atmosphère chaleureuse et conviviale. Les volumes généreux et l'ouverture vers l'extérieur confèrent à ce niveau un charme singulier, où l'élégance contemporaine s'harmonise avec l'esprit authentique de la montagne. Un emplacement privilégié au coeur de Val d'Isère, qui offre un cadre de vie idéal pour profiter pleinement de la station. Livraison 2027, frais de notaire réduits et crédit de TVA possible (sous conditions) Photos jointes non contractuelles : précédentes réalisations du promoteur. Copropriété de 54 lots (Pas de procédure en cours).

Caractéristiques

Année de construction
1950
Nombre de lots
54
Ascenseur
Oui
Prix
2200000
Apport
Taux
2%
Durée
20 Années
Mensualités
MAGNIFIQUE DUPLEX EN DERNIER ÉTAGE
Réf : 46
Bas de station
5 pièces - Appartement
Points forts
  • Bien neuf
  • Dernier étage
  • Belle prestations
Prix :
2 200 000€*
Honoraires charge vendeur

Nos conseillers sont là !
Etudions le bien immobilier qui vous ressemble :
+33 (0) 4 79 06 73 52