CHALET INDIVIDUEL À FORT POTENTIEL
Réf : 2963
CENTRE STATION
6 pièces - 154.83 m²- Chalet
Points forts
  • Cheminée
  • Environnement calme
  • Deux accès indépendants

Nos conseillers sont là !
Etudions le bien immobilier qui vous ressemble :
+33 (0) 4 79 06 73 52

Réf : 2963

CHALET INDIVIDUEL À FORT POTENTIEL

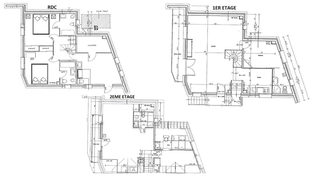
Au centre de la station, dans un environnement calme et à proximité des pistes, venez découvrir ce chalet individuel d'environ 160 m². Réparti sur 3 niveaux, ce chalet se compose : Au premier niveau : un garage, une chaufferie, 2 chambres chacune en suite avec leur salle de bains et wc. Au deuxième niveau : Une cuisine fermée, un espace coin repas ouvert sur un beau séjour avec cheminée ouvrant sur un balcon exposé Sud, une chambre en suite. Au troisième niveau : une cuisine équipée, un séjour avec poutres apparentes et cheminée, une chambre, deux salles de bains et une mezzanine ouverte sur le séjour.

Caractéristiques

Année de construction
1997
Mode de chauffage
Fuel
Ascenseur
Oui
CHALET INDIVIDUEL À FORT POTENTIEL
Réf : 2963
CENTRE STATION
6 pièces - 154.83 m²- Chalet
Points forts
  • Cheminée
  • Environnement calme
  • Deux accès indépendants

Nos conseillers sont là !
Etudions le bien immobilier qui vous ressemble :
+33 (0) 4 79 06 73 52