STUDIO ENTIEREMENT RÉNOVÉ EN COEUR DE STATION
Réf : 3588
CENTRE STATION
1 pièce - 25.09 m²- Appartement
Points forts
  • Entièrement rénové
  • Coin montagne
  • Superbe vue Sud
Prix :
485 000€*
Honoraires charge vendeur

Nos conseillers sont là !
Etudions le bien immobilier qui vous ressemble :
+33 (0) 4 79 06 73 52

Réf : 3588

STUDIO ENTIEREMENT RÉNOVÉ EN COEUR DE STATION

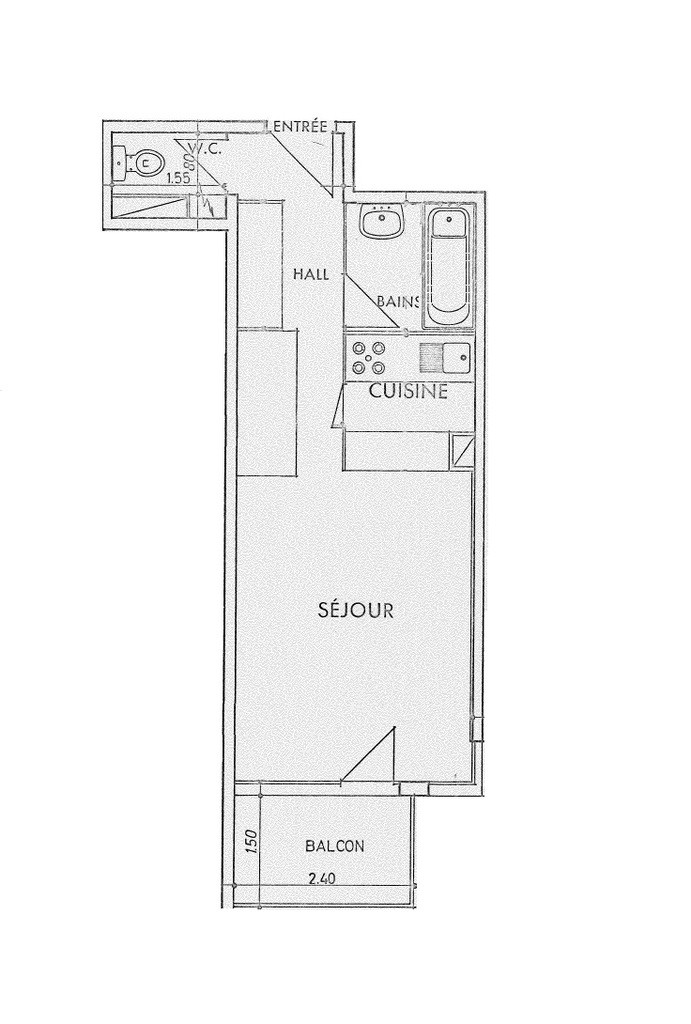
Magnifique vue pour ce superbe appartement entièrement rénové situé à deux pas des pistes et commerces. Il comprend une entrée avec lit rabattable et rangements, un WC, une salle de bains et une pièce de vie avec cuisine ouverte, lit double amovible et balcon exposé plein Sud avec vue plongeante sur le village. Vous apprécierez son emplacement calme, proche de tout et son intérieur rénové avec soin. Ce bien est vendu avec un casier à skis et une cave. Copropriété de 74 lots (Pas de procédure en cours). Charges annuelles : 1800 euros.

Caractéristiques

Année de construction
1970
Nombre de lots
74
Type de chauffage
Collectif
Ascenseur
Oui
Charges
1800 €/an
Taxe foncière
770 €/an
Taxe d'habitation
670 €/an
Prix
485000
Apport
0
Taux
2%
Durée
20 Années
Mensualités
STUDIO ENTIEREMENT RÉNOVÉ EN COEUR DE STATION
Réf : 3588
CENTRE STATION
1 pièce - 25.09 m²- Appartement
Points forts
  • Entièrement rénové
  • Coin montagne
  • Superbe vue Sud
Prix :
485 000€*
Honoraires charge vendeur

Nos conseillers sont là !
Etudions le bien immobilier qui vous ressemble :
+33 (0) 4 79 06 73 52