APPARTEMENT NEUF AVEC TERRASSE EXPOSÉE SUD-OUEST
Réf : 77
CENTRE
5 pièces - Appartement
Points forts
  • Terrasse
  • Neuf
  • Exposition Sud-Ouest
Prix :
4 096 814€*
Honoraires charge vendeur

Nos conseillers sont là !
Etudions le bien immobilier qui vous ressemble :
+33 (0) 4 79 06 73 52

Réf : 77

APPARTEMENT NEUF AVEC TERRASSE EXPOSÉE SUD-OUEST

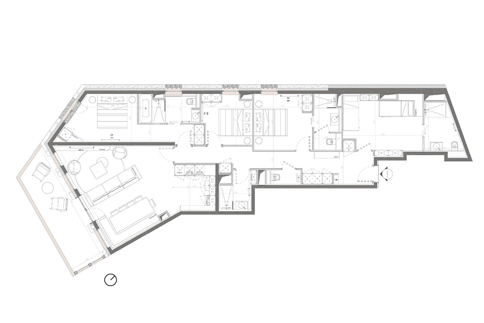
Superbe appartement de 125,68 m² , pensé pour accueillir confortablement famille et invités. Il propose trois chambres doubles, dont une élégante suite parentale avec baignoire et douche. Pour le plus grand bonheur des enfants, un grand dortoir les accueille avec sa propre salle d'eau incluant WC. Le séjour, lumineux et convivial, intègre une cuisine ouverte et s'ouvre sur une terrasse exposée Sud-Ouest, créant un espace de vie fluide et agréable, idéal pour partager des moments en toute saison. La résidence qui est située à proximité immédiate des commodités du village, intègre des équipements exclusifs tels qu'un espace fitness, une salle de massage, un sauna, ainsi qu'un service de conciergerie dédié à l'exploitation locative. Possibilité de récupération de TVA dans le cadre du régime de la para-hôtellerie. Frais de notaire réduits. Copropriété de 16 lots (Pas de procédure en cours).

Caractéristiques

Année de construction
2028
Nombre de lots
16
Type de chauffage
Collectif
Mode de chauffage
Pompe à chaleur
Ascenseur
Oui
Prix
4096814
Apport
0
Taux
2%
Durée
20 Années
Mensualités
APPARTEMENT NEUF AVEC TERRASSE EXPOSÉE SUD-OUEST
Réf : 77
CENTRE
5 pièces - Appartement
Points forts
  • Terrasse
  • Neuf
  • Exposition Sud-Ouest
Prix :
4 096 814€*
Honoraires charge vendeur

Nos conseillers sont là !
Etudions le bien immobilier qui vous ressemble :
+33 (0) 4 79 06 73 52